CASA LR
UBICACION: Barrio Privado Santa Guadalupe, Villa Rosa, Provincia de Buenos Aires
AÑO DE CONSTRUCCION: 2018
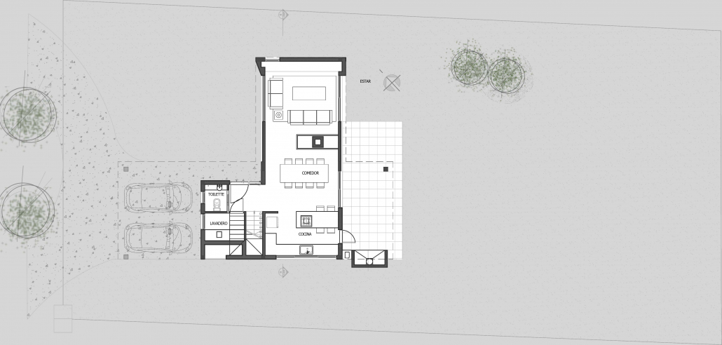
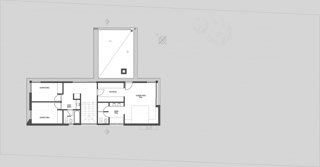
SUPERFICIE: 168 M2
El terreno rectangular de 623m2 y una implantación ávida de aprovechar el sol y las
energías renovables.
El encargo de los dueños fue el de realizar una casa con lineas rectas, muy moderna pero
con mucho diseño, que tenga buena aislacion térmica, que aproveche visuales pero
principalmente que se alimente de la energía solar y lo controle en verano y si era posible que
tenga algún sistema pasivo de control de calor y frio.
La Propuesta tuvo como premisa lo moderno, el color blanco y aventamientos grandes pero
resguardados del sol alto de los mediodías en verano, buena ganancia solar en invierno,
ventilación cruzada en casi todos los ambientes, muros ventilados a través de la mampostería y
el sidding, vidrios DVH, y una sistema de refrigeración geotérmico por pozo canadiense, esto
ahorra significativamente en la utilización de equipos tradicionales.
La obra terminada se realizo en nueve meses, cumpliendo las exigencias de lo dueños
ademas de lograr el alcance económico de confort y estética requeridos. Una casa en pocos
metros pero con una prestación muy singular.










