CASA VG
- Ubicación: Haras Santa María, Escobar, provincia de Buenos Aires.
- Superficie: 236 m2
- Año de construcción: 2012
Líneas netas y contemporáneas enmarcan una fachada que centra su expresividad en un juego de opacidades y transparencias que tanto la cierra a las miradas como la abre uniendo frente y contrafrente.
Contemporaneidad, fluidez, simpleza, personalidad, orientación, bajo mantenimiento y confort interior”, son las características utilizadas en esta vivienda las cuales definen el proyecto.
Todo ello de acuerdo con las premisas y exigencias preestablecidas por los propietarios. En un terreno con baja densidad construida y poca vegetación, el desafío fue lograr una casa abierta a las visuales y con una orientación estudiada para aprovechar la energía solar pasiva.
Con grandes aberturas se cumplieron estas premisas, ganando a la vez una intensa iluminación natural en todo el interior. De cara al entorno descampado que ofrece esa zona del barrio, el viento era un obstáculo a la hora de elegir la materialidad y las aberturas por lo que se optó por una construcción mixta con estructura de hormigón, en algunos casos visto, ladrillos cerámicos huecos Clima Block, y siding exterior Superboard símil madera como muros ventilados. Las aberturas son de aluminio anodizado con puente térmico de alta prestación y vidrios DVH. La calefacción se resolvió con piso radiante.
La escalera como circulación vertical oficia de manera directa entre los tres niveles de la casa, reduce toda otra circulación innecesaria y permite obtener, en pocos metros, amplia diversidad de ambientes, logrando que cada planta ofrezca sensaciones y usos diferenciados desde lo público y lo privado.
La arquitectura asume el exterior como parte indivisible del proyecto y lo asocia al interior logrando sensaciones, visuales y recorridos de gran valor estético
Desarrollo: en subsuelo, cine y familyroom; lavadero, patio inglés y tender.
En PB: hall, estar, comedor, cocina integrada, galería-quincho, escritorio, habitación y baño de servicio,
toilette.
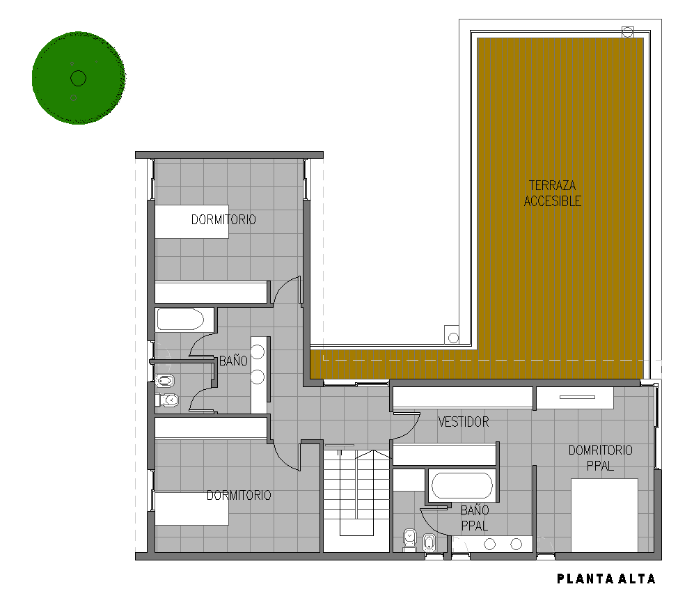
En PA: dormitorio principal en suite con vestidor integrado y baño con hidromasaje y ducha escocesa; dos dormitorios y baño junior compartimentado. Terraza mirador.













