A PURO VOLADIZO
CASA 146
- Ubicación: Bº Santa Guadalupe, Pilar del Este, BA
- Superficie: 210m2
- Año de construcción: 2020
Modernidad que flota
Blanca con muros ventilados de chapa envejecida, esta casa se transforma en una auténtica vivienda sustentable porque además de todos los sistemas pasivos de ganancia solar y ventilación cruzada, aplica fachadas ventiladas y ventanas doble vidrio imprimiéndole una gran optimizaciones al momento del ahorro energético y la obtención de confort.
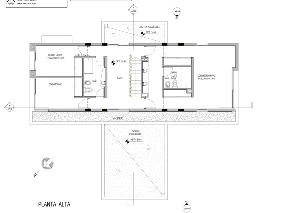
De líneas rectas y una organización en cruz sólo se sostiene en 4 columnas permitiendo dejar flotar el volumen de planta alta dando como resultado semicubiertos absolutamente libres y un núcleo central de circulación y servicios ajustados en una especie de caja de servicios cerrada en sí misma.
Sencilla, austera y de estética purista CASA 146 responde a un encargo de fin de semana con los metros justos y el confort deseado para una familia tipo.






















