LA MORADA
L’UNITÉ POLYVALENTE
- Progetto 13
- Ubicación: Rivadavia 735, Escobar
- Tipologia: Multifamiliar de usos mixtos
- Superficie: 5.236 m2
- Año de construcción: 2016/2021
La Morada, desde su inicio fue un diseño complejo puesto que la compra del lote se hizo en dos instancias y tuvimos que reformular todo el proyecto, es sabido que las expectativas comerciales siempre distan un poco de las arquitectónicas por no decir que tienen muchas veces puntos de vista antagónicos, y el nuestro siendo un estudio de arquitectura pero que realiza real state sufre esta suerte de dualidad a la hora de proyectar, punto clave para la neurosis, «que estamos dispuestos a negociar con nosotros mismos, que deseos vamos a reprimir’.
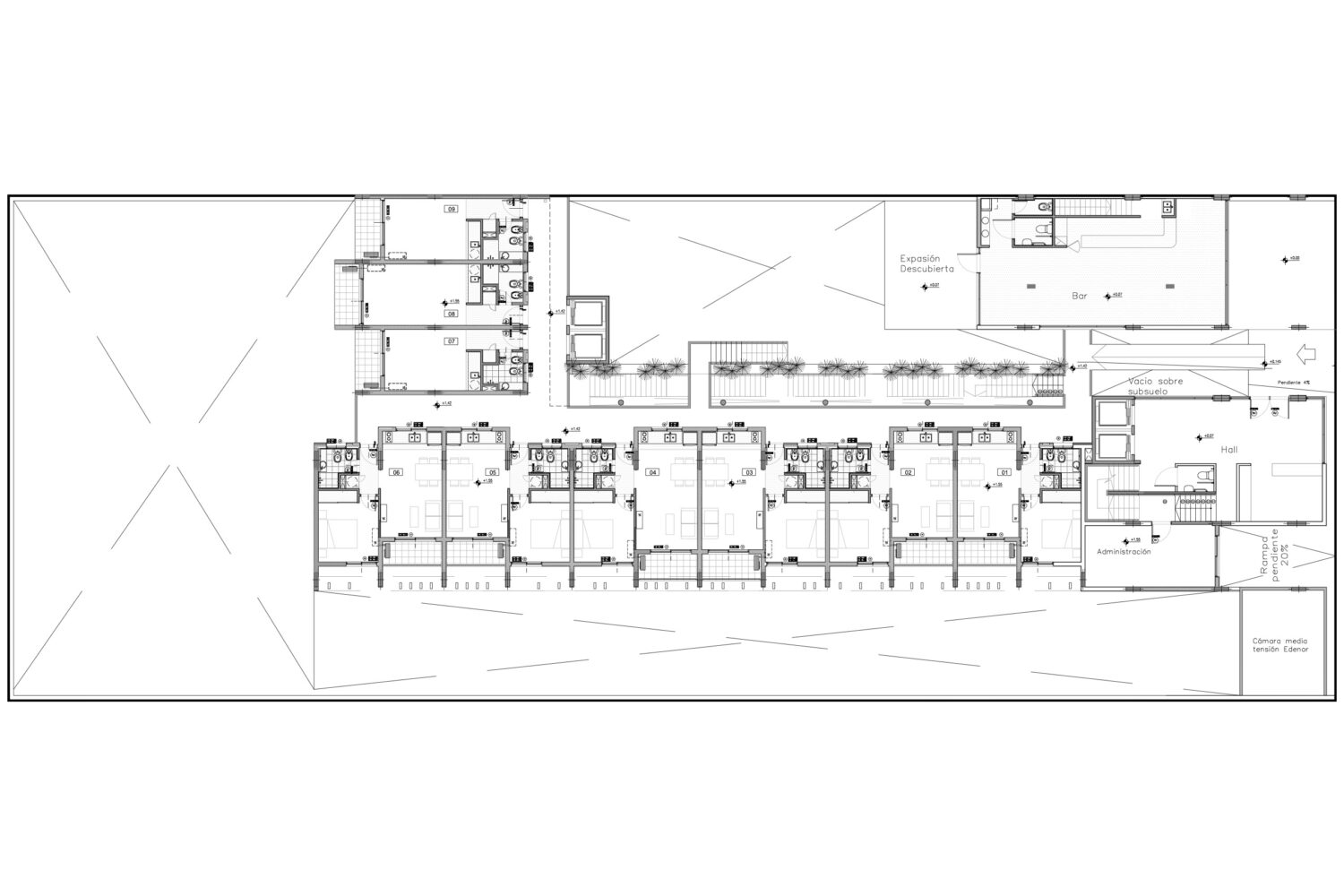
Y así fue como la situación del lote lindando con el ferrocarril en su contrafrente, el asoleamiento, las limitaciones Municipales, el FOT, FOS, alturas máximas y retiros nos dieron el punto de partida para un programa ambicioso, el edificio debía contener una especie de Rental para renta temporaria de 32 departamento, un sector para 36 viviendas residenciales permanente, otro de 18 estudios u oficinas, 60 cocheras, auditorio, gimnasio, local comercial preparado para restaurante, depósitos, solarium en terraza con piscina, front desck, entradas independientes y seguridad controlada. Y comenzamos.
Nuestro Progetto13 tomo carácter de edificio contundente pero minimalista, con las fachadas tratadas de acuerdo al uso y a la orientación, el hormigón nuevamente como protagonista en su envolvente ademas de la estructura, en parasoles verticales, tubos desalineados y ventanales controlados hacia la calle de acceso. La circulación vertical interna se pensó por una escalera al cielo, de un tramo con sus respectivos descansos pero sin solución de continuidad y todo este balconeo y pasillos de distribución mirando hacia un jardín interno de mucha calidad. Alta densidad, funcionalismo pragmático y soluciones simples La Morada ocupa un lugar privilegiado un una de las cuadras centrales mas lindas de Escobar donde deja su impronta.
PLANOS



























