ART GALLERY OFFICE
Contenedor de Arte
- Progetto 14
- Ubicación: Ana Mogas 127, Pilar
- Tipologia: Multifamiliar de usos mixtos
- Superficie: 6.300 m2
- Año de construcción: 2018/2023
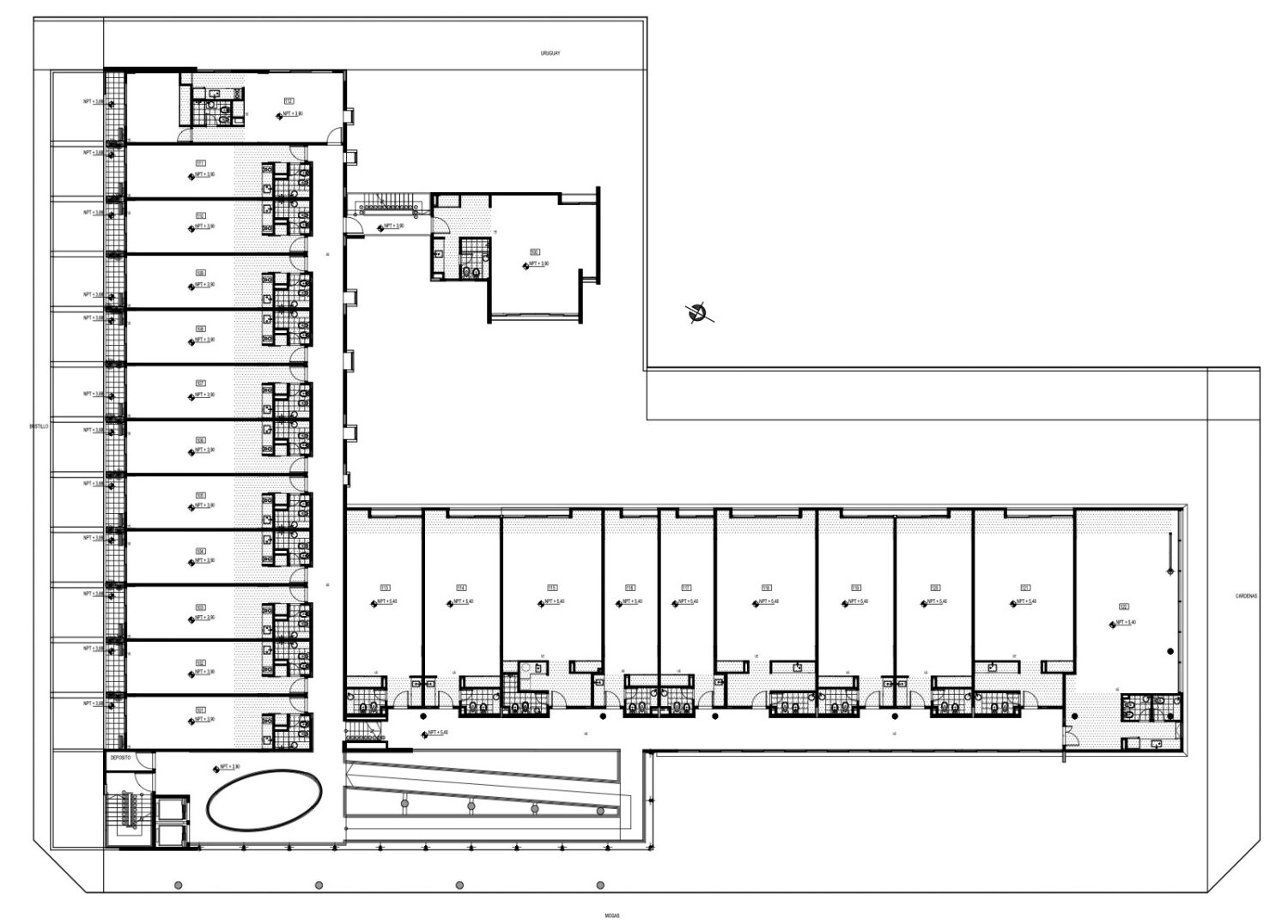
Art Gallery Office Pilar es un edificio situado en un solar de media manzana en la ciudad de Pilar a ocho cuadras del centro cívico y a una cuadra de la panamericana.
El edificio alberga usos múltiples, vivienda, habitación, renta, oficinas de distintas escalas, locales comerciales en un zócalo elevado y 80 cocheras en subsuelo aunque, su principal eje generador es la posibilidad que tiene de funcionar como centro expositor de arte, comunicando el patio central con el espacio público urbano en busca de expandir lo público con lo privado asociado a la vez con un salón de exposición múltiple y un hall de rampas que sumando un recorrido de muestra, la famosa promenade o recorrido arquitectonico, aporta muchos metros cuadrados posibilitando exhibiciones más versátiles, dinámicas y de distintas escalas.
De lenguaje brutalista pero sobre todo racional el hormigón se quiebra envolviendo rajas y cristales a veces flotando y otra sobre pilotes o mensulas.
Art Gallery Office está listo para dar lugar a la cultura artística conviviendo en lo cotidiano dentro de un contexto afable !!.










































