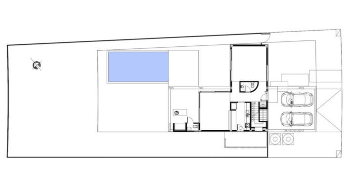
Funcionalidad en dos plantas
CASA 17
- Ubicación: Barrio Santa Elena, Pilar del Este, Pilar,BA
- Superficie: 160m2
- Año de construcción: 2021
Funcionalidad en dos plantas
Casa 17 es un proyecto donde los metros no son muchos ni pocos, cuando definimos que hacer que se ajuste a un publico joven, con posibilidad de ampliarse familiarmente, y que la obra sea consecuente con este perfil de cliente sin dejar de coexistir con el entorno y pretensiones del barrio, siempre buscando llegar a una excelencia capaz de ser accesible para quien fuera a ser su nuevo propietario, sin perder diseño, calidad constructiva, funcionalidad y estética moderna.
Racional, blanca y con muros ventilados dentro de una tipología muy ensayada por el estudio pero que no deja de dar buenos resultados y que permite componer una gran variedad de propuestas, logramos una planta baja de sectores públicos y servicios diferenciados, con una versatilidad muy compleja pero cómoda a la vez, dando como resultado cocheras cubiertas, una galería/parrilla en contacto con el sector cocina y comedor, fluidez en las vistas y en la conexión interior, espacio intermedio y el exterior.
Sus grandes aberturas e iluminación siempre están presentes.
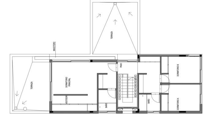
La planta alta mucho mas privada, contiene una suite con amplio vestidor y terraza mas dos dormitorios con baño compartido y sector lavatorios externos desde donde también se puede acceder a otra terraza solárium de usos múltiples.















